ĐẶC ĐIỂM NỔI BẬT
- Điều hòa âm trần Panasonic S-48PU2H5-8/U-48PS2H5-8
- 1 chiều - 48000BTU - Gas R410a- 1 pha
- Công nghệ lọc khí NanoeX, điều khiển từ xa
- COP, CSPF cao, Inverter tiết kiệm điện
- Luồng gió mạnh mẽ dễ chịu thổi rộng 360 độ
- Độ bền cao, dễ dàng bảo dưỡng & sửa chữa
					- Toàn bộ Giá đã bao gồm VAT (Không bao gồm gia dụng và khuyến mại) 
- Giá trên là Giá bán tại kho (chưa bao gồm phí vận chuyển và lắp đặt)
		 
- Đền gấp 10 lần nếu không phải hàng chính hãng. 
- Gọi đặt mua 24/7 : 0936.35.95.95  (cả dịp Lễ, Tết) 
- Hàng nguyên hộp, chính hãng, bảo hành theo tiêu chuẩn hãng 
- Đổi trả trong vòng 05 ngày nếu lỗi do nhà sản xuất.
				
 
						 
						Điều hòa âm trần Panasonic S-48PU2H5-8/U-48PS2H5-8 inverter 1 chiều 48000BTU sử dụng gas R410a model mới 2019 được sản xuất nhập khẩu chính hãng Malaysia. Đây là dòng sản phẩm cao cấp nhất thị trường.
Điều hòa âm trần 48000BTU Panasonic cao cấp InverterS-48PU2H5-8/U-48PS2H5-8 với thiết kế đẹp mắt, công nghệ làm lạnh tiên tiến. Cơ chế thổi gió hiệu quả, khả năng tiết kiệm điện năng ấn tượng. Đặc biệt là điều khiển từ xa thế hệ mới CONEX. Đây chắc chắn là lựa chọn lý tưởng cho không gian sống của bạn.
Kiểu dáng tinh tế cho kiến trúc hiện đại
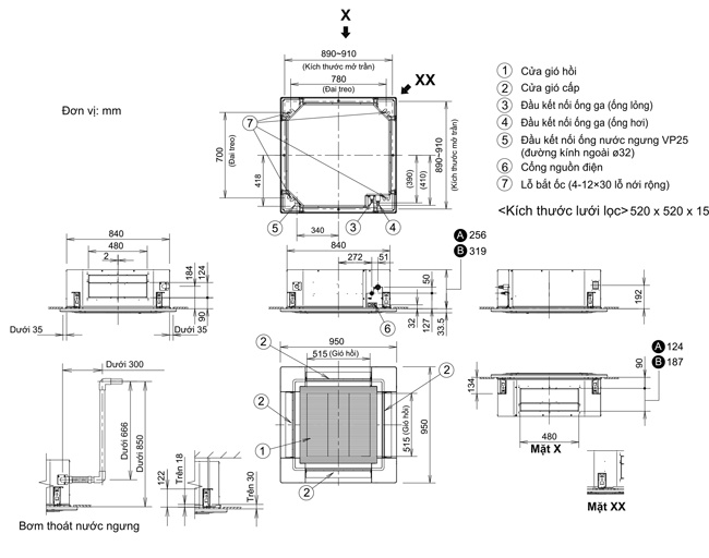
Panasonic tin rằng một trong những yếu tố quan trọng nhất của thiết kế dàn lạnh chính là không ảnh hưởng đến nội thất trong phòng. Do đó thiết kế mặt nạ phẳng và tinh tế của máyđiều hòa âm trần Panasonic S-48PU2H5-8/U-48PS2H5-8 với phần lộ ra so với trần chỉ 33.5mm mang lại thiết kế hài hòa cho cả căn phòng của Bạn.
Công suất 48000BTU , Panasonic S-48PU2H5-8/U-48PS2H5-8 lựa chọn phù hợp lắp đặt cho căn phòng dưới 40m2: Phòng khách, phòng họp...

Luồng gió rộng 3600 và thổi xa hơn
Gió được thổi xa hơn từ các cửa cấp trên dàn lạnh. Các đường cong trên đồ thị phân bố nhiệt độ trong phòng mở rộng 3600 từ trong tâm dàn lạnh, không khí lạnh được thổi ra xa hơn từ 4 cửa gió trên dàn lạnh, mang lại không gian mát lạnh đồng đều và dễ chịu.

Công nghệ Nanoe X không sợ vi khuẩn, nấm mốc
Công nghệ lọc không khí nanoe™ X sẽ tạo ra các gốc OH có bọc nước lên đến 9.600 tỷ gốc mỗi giây. Giúp lọc sạch mọi bụi bẩn, mùi hôi, nấm mốc, vi khuẩn có trong không gian. Mang đến sự trong lành và sự an toàn cho người sử dụng.

Công nghệ inverter tiết kiệm điện vượt trội
Với công nghệ Inverter và các tính năng tiết kiệm năng lượng tích hợp, điều hòa mang đến nhiều lợi ích vượt trội
+ Tiết kiệm điện năng lên đến 50%.
+ Nhiệt độ luôn được duy trì ổn định mang đến sự thoải mái dễ chịu.
+ Vận hành êm ái giúp đem lại giấc ngủ ngon cho người sử dụng.
+ Tăng tuổi thọ của máy.

Sử dụng gas R410a
Điều hòa âm trần Inverter Panasonic S-48PU2H5-8 sử dụng gas R410a hiệu suất làm lạnh cao hơn 1.6 lần gas R22, thân thiện hơn với môi trường.

Độ bền cao thách thức thời gian
Máy điều hòa âm trần Panasonic 48000BTU inverter S-48PU2H5-8/U-48PS2H5-88 trang bị dàn đồng không chỉ giúp độ bền cao hơn mà còn giúp tăng hiệu suất làm lạnh.
Panasonic đã nghiên cứu khí hậu và thói quen lựa chọn sản phẩm của người dùng rất kỹ. Sản phẩm dàn nóng của Panasonic được phủ lớp chống ăn mòn có khả năng chống gỉ và không khí mặn nhằm đảm bảo hiệu suất tốt nhất. - Máy nén cao cấp, hoạt động bền bỉ. Các máy nén do Panasonic sản xuất được cung cấp cho người dùng trên toàn thế giới.

Điều khiển từ xa điều hòa Panasonic sử dụng dễ dàng
Sản phẩm được trang bị điều khiển từ xa (kèm theo) giúp khách hàng dễ dàng và thuận tiện hơn trong khi sử dụng. Điều khiển được tích hợp nhiều chế độ cài đặt giúp kiểm soát hướng gió và chất lượng không khí theo đúng mong muốn của khách hàng.

Bộ điều khiển tủy chọn cho dàn lạnh S-21PU2H5
Dễ dàng lắp đặt và bảo dưỡng định kỳ
Thiết kế của dàn nóng mới này nhỏ gọn và nhẹ hơn, dễ dàng lắp đặt trong không gian hạn chế.
Đường ống đồng được lắp đặt linh hoạt theo nhiều hướng khác nhau, thuận tiện trong thiết kế và thi công. U-48PS2H5-8 thấp hơn 100mm và nhẹ hơn 24kg so với model cũ.

.Dễ dang lắp đặt dàn nóng:
Chiều dài đường ống đòng có thể tăng lên 30m mà không cần nạp gas bổ sung, có thể tăng lên tối đa 50m cần nạp gas bổ sung.
Với hệ thống ống đồng không quá 30m thì không cần nạp gas bổ sung, dễ dàng lắp đặt, tiết kiệm chi phí.

Bạn nên mua hàng tại Siêu thị ĐIỆN MÁY ECC VIỆT NAM vì :
Điện máy ECC VIỆT NAM luôn mang đến cho khách hàng các sản phẩm chính hãng với mức giá tốt nhất thị trường
ĐIỆN MÁY ECC VIỆT NAM được đông đảo khách hàng trên toàn quốc tin tưởng và ủng hộ
Với nhiều năm kinh nghiệm trong việc trong lĩnh vực điện máy và là nhà phân phối lớn các sản phẩm điện máy. Công ty chúng tôi tư vấn lắp đặt các sản phẩm điện máy chuyên nghiệp, chúng tôi sẽ tư vấn tới khách hàng để có những sản phẩm phù hợp với giá tiền và mang lại hiệu quả cao nhất.
Các lỗi kỹ thuật phát sinh với sản phẩm  bán ra, chúng tôi luôn hỗ trợ tốt nhất và đảm bảo quyền lợi của khách hàng
Gọi điện ngay cho chúng tôi
Mobile/ Zalo : 0936.35.95.95 - 0973.781.034
Để đặt mua hàng và được tư vấn những sản phẩm tốt nhất phục vụ cho quý khách.

-----
| Dàn lạnh | S-48PU2H5-8 | ||
| Dàn nóng | U-48PS2H5-8 | ||
| Mặt nạ | CZ-KPU3H/CZ-KPU3 | ||
| Công suất làm lạnh: định mức (Tối thiểu - Tối đa) | Kw | 14.00 (3.80-15.40) | |
| Btu/h | 47.800 (13.000-52.600) | ||
| Dòng điện: Định mức (Tối đa) | A | 25.5 (28.0) | |
| Công suất tiêu thụ: định mức (Tối thiểu - Tối đa) | Kw | 5.39 (1.25-5.90) |